Сотрудничество
Приглашаем к сотрудничеству компании, занимающиеся строительством деревянных домов
+7 (967) 555-36-93
Работам с Пн - Пт: 08:00 - 18:00
Наш телефон
+7 (967) 555-36-93

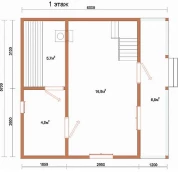
Проект бани "ПБРБ - 0418"

Фото 1
Фото 2
Фото 3
Фото 4
Фото 5
Фото 6
Фото поменьше 1
Фото поменьше 2
Фото поменьше 3
Фото поменьше 4
Фото поменьше 5
Фото поменьше 6
Характеристики

Площадь

61.50 м2

Этажность

Одноэтажная

Габариты

6х5 м

Материал стен:

Профилированный брус

С террасой

Да

Выберите материал
Стоимость от

-20%

руб
руб
По данному проекту построено 43 домов
Предложение не является публичной офертой. Стоимость является ориентировочной и приведена исключительно в информационных целях.
Описание проекта
Проект "ПБРБ - 0418" - хорошая одноэтажная баня из профилированного бруса. Площадь дома 61.50 м2 с размерами 5*6.

Компания Брус Дом Строй осуществляет качественное строительство бани "ПБРБ - 0418". Обращаем ваше внимание, на то, что стоимость строительства напрямую зависит от комплектации и технологии строительства. Для предоставления подробной информации и консультирования, можно обратится по номеру: +7 (967) 555-36-93.
Получите проект на почту

Получите проект на почту

Оставьте заявку на получение проекта на почту
дом

Выгодный кредит на строительство

Ипотека - легко и доступно!
от 5%
Первонач. взнос от 10%
до 30 лет
Высокий кредитный лимит
до 10 000 000 руб
Ипотечный калькулятор
Расчитайте стоймость ипотеки онлайн
Стоимость дома
1 000 000
Ставка по кредиту
5 %
Срок
10 лет
Первоначальный взнос
100 000
10 %
Ваш платеж
от 9 750 ₽/мес
Сумма кредита
900 000
Срок
10 лет
шаги

Сделай первый шаг к красивому участку

Оставьте заявку и наш специалист свяжется с вами в ближайшее время

2

Согласуем
Согласуем
Подберем проект для Вас, внесем изменения под параметры вашего дома

3

Подпишем
Подпишем
Обговариваем сроки работ и удобный для Вас способ оплаты, заключаем договор

4

Доставим
Доставим
Бережно доставим и выгрузим материалы для строительства

5

Построим
Построим
Проведем полный комплекс строительных и отделочных работ

6

Сдадим
Сдадим
Вы принимаете нашу работу, подписываете акт сдачи-приемки дома, после заезжаете в дом своей мечты

Спецпредложения

Наша компания предлагает выгодные предложения. Подробности уточняйте у менеджера.
Экономия до 5% на строительные услуги при оформлении заказа ОНЛАЙН
Экономия до 5% на строительные услуги при оформлении заказа ОНЛАЙН
Скидка для молодых семей -5%
Скидка для молодых семей -5%
Скидка 15% за наличный расчет
Скидка 15% за наличный расчет

Почему лучше заказывать дом у нас

Необходимо реализовать успешное строительство с полноценным выполнением установленных законодательством требований? Компания «Горизонталь» в своей работе обладает всем необходимым, чтобы квалифицированно реализовать проект любой степени сложности! Мы используем только высококачественные стройматериалы и применяем успешные современные технологии!
Честная цена
Мы заключаем с Вами договор на все работы с согласованной понятной сметой
Честная цена
Сдача в срок
Сдаем в срок, указанный в договоре
Сдача в срок
Экономия 13%
Имеем корпоративные скидки, поэтому можем предложить Вам лучшую цену
Экономия 13%
Опытные кадры
Дипломированные специалисты с многолетним опытом работы в строительстве
Опытные кадры

Часто задаваемые вопросы

Можно ли построить дом по индивидуальному проекту?
Да, мы предлагаем строительство как по готовым проектам, так и по индивидуальным, разработанным с учетом всех пожеланий клиента.
Какой порядок работы с клиентом?
Мы начинаем с консультации и разработки проекта, после чего подписываем договор и приступаем к строительным работам. На всех этапах заказчик информируется о ходе выполнения работ.
Какие технологии и материалы вы используете?
Мы используем современные строительные технологии и материалы высокого качества, что позволяет создавать долговечные и энергоэффективные здания.
Какие строительные услуги вы предоставляете?
Мы предлагаем полный спектр строительных услуг, включая проектирование, строительство коммерческих, промышленных и административных объектов, а также выполнение отделочных работ и реконструкцию зданий.
Какие технологии строительства вы используете?
Мы используем современные строительные технологии, включая монолитное строительство, строительство из блоков и кирпича, что обеспечивает высокую прочность и долговечность объектов.
Каковы сроки строительства?
Сроки зависят от масштабов и сложности проекта. В среднем строительство коммерческого здания занимает от 6 до 12 месяцев, однако точные сроки определяются на этапе разработки проекта.
Вопросы?

Не нашли ответ на свой вопрос?

Задайте его нашим специалистам

Контакты

Адрес
Крылова, 78
Телефон
График работы
Пн - Пт: 08:00 - 18:00
Средняя оценка построенного дома - 9.3 на основании 3 отзывов и 3 оценок
Рассчитать стоимость дома
Рассчитать стоимость ипотеки
Задать вопрос
Спецпредложения
Менеджер сайта
У Вас 2 непрочитанных сообщения!
Мы используем файлы cookies. Оставаясь на сайте, вы даете согласие на их использование